√1000以上 折板屋根 施工方法 181253-折板屋根 施工方法
二重折板屋根構造及び二重折板屋根の施工方法
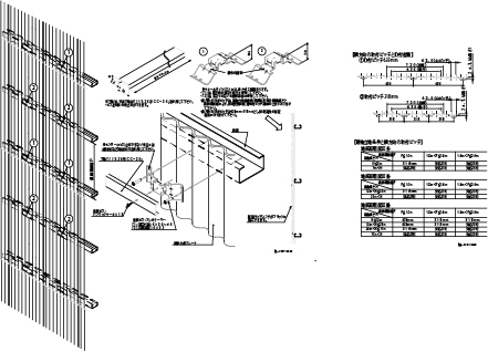
※設置する重ね式折板屋根に合わせてお選び下さい。なお、設置前に設置する重ね式折板屋根の種類をよ くご確認ください。 ※イラストは重ね式折板屋根150 mm タイプ用の取付金具になります。 ① 重ね式折板取付金具 (M8 ボルトL45 または55) ステンレス t2折板は軽いこと、耐力が高いので、工場や倉庫の屋根として使います。 また、施工性も良いです。 見栄えの問題がありますが、今後、住宅でも使用例も期待されます。 今回は折板の意味、読み方、施工方法、勾配、折板のについて説明します。 折板は
折板屋根 施工方法
折板屋根 施工方法- 前置き 以前、「屋根の塗装 金属屋根編」という記事を書きました。 paintworkhatenablogcom この記事の中で「折半屋根」の事も書きました。折半屋根の項目で「ボルトキャップ」についても私的に書きましたが、私的見解では 「被せない方がいい派」とも書きました。折板屋根、笠木面戸からの雨漏り 金沢東店 雨漏り110番 金沢東店 矢印の部材名は面戸と言い通常2枚取り付けますが、このアパートの面戸は1枚だけでした。 2枚あることにより雨風が入りくくなるのです。 ですから新規で1枚取り付けて、更に雨風が入り
高知 折板 災害対策 カバー工法
屋根カバー工法の手順と押さえておきたいポイント 施工手順 ポイント 1足場組立・養生シート 軒先(雨どい)の位置から 約50センチ手前には障害物をおかない 2棟板金・雪止め金具の撤去 材料とはしご、職人さんがとめる車の スペースを確保 3防水折板屋根の改修 2.折板屋根改修の目安 1)カラー鋼板の塗り替え時期 ※ボルトについてボルト補修としてケレン後タッチアップ 塗装方法があるが、屋根塗り替え時一緒 に塗装する場合が多い。 図-1 断面図〈断熱材なし〉 シリーズ改修①この発明は、折版屋根の施工方法に関し、特に、長尺の折版屋根を施工する方法の改良に関する。 背景技術 0002 従来より、店舗、特に移設型店舗や工場等の建物には重ね式の長尺折版葺きによって屋根の施工が多くなされていた。
屋根材 各種加工・施工要領 msベンタム(折板r曲げ加工) 折板の現場成形要領 屋根材 各種加工・施工要領 現場成形 地上成形 + レッカーによる荷揚 ステージ上の成形 1 2 現場成形時に必要な設備・資材 使用レッカー車 荷揚要領 材料置場=角材・養生シート 折板屋根の雨漏り原因と修理方法について|埼玉県の屋根補修は未来アートにお任せ! ご覧いただきありがとうございます。 埼玉県川口市東川口で、外壁塗装、リフォーム工事を手掛けている未来アートです。 皆さんは、『折板屋根』をご存知でしょうか。ハゼ式折板屋根設置(直付工法) まざまな設置環境に対応するバリエーションと、劇的な施工性を実現させたハゼ式折板屋根用マルチ金具です。 設置例 施工分解図 設置条件 注意 重塩害地域には、使用
折板屋根 施工方法のギャラリー
各画像をクリックすると、ダウンロードまたは拡大表示できます
![]() | ![]() | |
![]() | ||
![]() | ![]() | |
「折板屋根 施工方法」の画像ギャラリー、詳細は各画像をクリックしてください。
![]() | ||
![]() | ![]() | ![]() |
![]() | ![]() | ![]() |
「折板屋根 施工方法」の画像ギャラリー、詳細は各画像をクリックしてください。
![]() | ![]() | |
![]() | ![]() | ![]() |
![]() | ![]() | ![]() |
「折板屋根 施工方法」の画像ギャラリー、詳細は各画像をクリックしてください。
![]() | ![]() | |
![]() | ||
![]() | ![]() | |
「折板屋根 施工方法」の画像ギャラリー、詳細は各画像をクリックしてください。
![]() | ![]() | ![]() |
![]() | ![]() | ![]() |
![]() | ![]() | ![]() |
「折板屋根 施工方法」の画像ギャラリー、詳細は各画像をクリックしてください。
![]() | ![]() | |
![]() | ![]() | |
![]() | ![]() | |
「折板屋根 施工方法」の画像ギャラリー、詳細は各画像をクリックしてください。
![]() | ||
![]() | ![]() | |
![]() | ![]() | ![]() |
「折板屋根 施工方法」の画像ギャラリー、詳細は各画像をクリックしてください。
![]() | ![]() | ![]() |
![]() | ![]() | |
![]() | ![]() | |
「折板屋根 施工方法」の画像ギャラリー、詳細は各画像をクリックしてください。
![]() | ![]() | |
![]() | ![]() | ![]() |
「折板屋根 施工方法」の画像ギャラリー、詳細は各画像をクリックしてください。
![]() | ![]() | ![]() |
![]() | ![]() | |
![]() | ![]() | ![]() |
「折板屋根 施工方法」の画像ギャラリー、詳細は各画像をクリックしてください。
![]() | ![]() | |
![]() | ![]() | ![]() |
![]() | ![]() | |
「折板屋根 施工方法」の画像ギャラリー、詳細は各画像をクリックしてください。
![]() | ![]() |
折板屋根の上にサーモバリア(遮熱シート)を施工するだけで熱を遮断し、空気層が完璧な断熱効果をもたらします。 既存の建物を 短期施工・低価格 で 省エネ仕様 に改善しませんか? ※従来工法と比較 施工対象 折板屋根の建物/工場三晃金属工業が施工・販売する金属屋根 折版 各種断熱工法(ダブルパック・吸音ダブルパック・mrad・sras) ダブルパック。快適な屋内環境を確保するため、「断熱」や「音」、「意匠性」などの機能を付加する製品開発をしています。三晃金属工業は、金属屋根、建材の施工・販売、改修工事
Incoming Term: 折板屋根 施工方法,










































































コメント
コメントを投稿